お問い合わせはこちら
047-362-0888
中古マンション
「利回り」は、当該不動産の1年間の予定賃料収入の不動産取得対価に対する割合であり、公租公課その他当該物件を維持するために必要な費用の控除前のものです。
また、予定賃料収入が確実に得られる事を保証するものではありません。

事前に必ず予約してください
■現地案内会開催!
まずはお気軽にお問い合わせください!
■ご案内方法
最寄り駅等でお待ち合わせ、弊社へのご来社など、ご相談ください。
ご来場・ご来店が直接のお越しが難しいお客様は、ご指定の場所(最寄りの駅など)まで無料送迎いたします。
(1)初めての物件見学コース(90分)
・住宅の購入を検討し始めたばかり
・希望のエリアや路線が決まっていない
・自分の条件にあった物件を紹介してほしい
など、初めてのマイホーム探しをご検討される方にオススメのコースです。
ご希望があれば周辺環境、お客様の希望に合わせた物件などもご案内をいたします。
(2)住宅ローン相談コース(60分)
・自分がどのくらいのローンを組めるのか知りたい
・貯金額が少ないけど購入できるのか知りたい
・そもそもの住宅ローンの仕組みを教えてほしい
・住宅ローンを含めた資金繰りの方法を教えてほしい
など、住宅ローンやライフプランを含めたご相談をしたい方向けのコースです。
(3)さくっと見るだけコース(30分)
・忙しくてなかなか時間が取れない
・まずはとにかく見学だけしてみたい
・1年以内くらいに住宅の購入を検討している
など、まずは見学したいという方向けのコースです。
広さや間取り、陽当たりなどリアルにご体感いただけます!
(4)無料相談カウンター
・弊社カウンターで直接お話しながら条件を整理
・スタッフが希望条件に合う物件をチョイス
・マンション購入の基礎の基礎から何でも相談
○店舗隣接のコインパーキングあり
○キッズスペースをご用意しています!
おもちゃやタブレット端末、お飲み物もございます
お子様もご一緒にどうぞ!
047-362-0888
営業時間:10:00〜19:00 / 定休日:毎週水曜日
※地図上の物件位置は近隣に物件が所在することを表すものであり、実際の物件所在地とは異なる場合がございます。
047-362-0888
営業時間:10:00〜19:00 / 定休日:毎週水曜日
| 所在地 | 千葉県松戸市常盤平3丁目 | ||
|---|---|---|---|
| 交通 |
京成電鉄松戸線 「常盤平」駅
徒歩12分 武蔵野線 「新八柱」駅 徒歩30分 京成電鉄松戸線 「五香」駅 徒歩14分 |
||
| 価格 | 1,780万円 | 管理費 | 12,310円 |
| 修繕積立金 | 16,920円 | 修繕積立基金 | |
| 所在階/階数 | 1階 / 8階建 | 築年月(築年数) | 1986年 7月(築39年) |
| 専有面積 | 72.97㎡ | バルコニー面積 | 7.26㎡ |
| 建物構造 | 鉄筋コンクリート(RC) | 主要採光面 | |
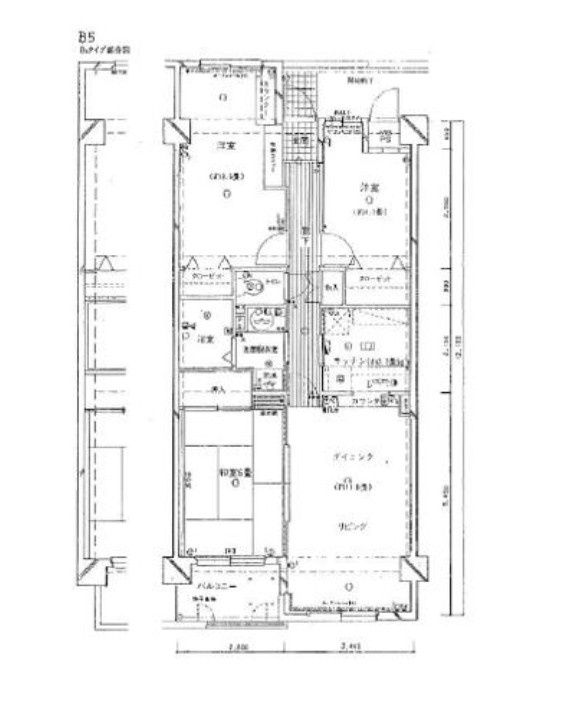
| 間取り |
3LDK
|
||
| リフォーム | |||
| 引渡し | 即時 | ||
| 管理 | 管理形態:管理会社に全部委託、 管理員の勤務形態:日勤、 管理会社:長谷工コミュニティ | ||
| 土地権利 | 所有権 | 用途地域 | 第一種中高層住居専用地域 |
| 土地の権利形態 | |||
| 駐車場 | 空無 | ||
| 設備条件 | 公共下水 / 公営水道 / 閑静な住宅地 / エレベーター / 防犯カメラ / ペット相談 / SOHO向け / オープンハウス / 室内洗濯機置場 / フローリング / 電気有 / ガスコンロ / コンロ2口以上 / コンロ3口 / バス・トイレ別 / 独立洗面台 | ||
| その他条件 | |||
| 備考 | |||
| 周辺の学校 | |||
| 取引態様 | 仲介 | 物件番号 | 92286567 |
| 情報公開日 | 2026年2月27日 | 次回更新予定日 | 2026年3月13日 |
| 取引条件の有効期限 | 2026年3月13日 | ||
| 取扱い会社 |
株式会社アスライク 〒271-0077 千葉県松戸市根本7番地17渋谷ビル 1階 千葉県知事(1)第17761号 (公社)首都圏不動産公正取引協議会 |
||
047-362-0888
営業時間:10:00〜19:00 / 定休日:毎週水曜日
| 所在地 | 物件の住所を表示。(詳細住所は表示していない場合もある) | ||
|---|---|---|---|
| 交通 | 物件(部屋)の沿線駅・バス停を表示。(複数駅・バス停の利用が可能な場合は最大3件まで) | ||
| 間取り/詳細 | 数字は居室数を表示。LDKはそれぞれ「リビング」「ダイニング」「キッチン」、S(納戸)とは「納戸」「サービスルーム」「マルチルーム」「フリールーム」など建築基準法第28条に適合していないため、居室と認められない納戸その他の部分を表す。 | ||
| 価格 | 販売されている住戸の価格を表示。仲介手数料は含まない。 | ||
| 管理費 | 共同住宅の設備その他共用部分の維持および管理をするために必要な費用を表示。 | ||
| 修繕積立金 | 共用部分の修繕のために積立てる金額を表示。 | ||

中古マンション
| 価格 | 1,788 万円 | ||
|---|---|---|---|
| 間取り | 3LDK | 築年月(築年数) | 1979年 1月 (築47年) |
| 専有面積 | 78.03㎡ | 階数 | 5階建 |
| 住所 | 千葉県松戸市新松戸5丁目 | ||
| 交通 |
常磐緩行線「新松戸」駅 徒歩18分 つくばエクスプレス「南流山」駅 徒歩18分 流鉄流山線「幸谷」駅 徒歩17分 |
||
中古マンション
| 価格 | 2,000 万円 | ||
|---|---|---|---|
| 間取り | 3LDK | 築年月(築年数) | 1988年 9月 (築37年) |
| 専有面積 | 74.05㎡ | 階数 | 5階建 |
| 住所 | 千葉県松戸市五香南2丁目 | ||
| 交通 |
京成電鉄松戸線「元山」駅 徒歩3分 京成電鉄松戸線「五香」駅 徒歩14分 北総鉄道「大町」駅 徒歩33分 |
||
【間取り】